Дизайн интерьера в марокканском стиле. Отделка
Из-за климатических особенностей, в 2марокканских интерьерах часто применяются каменные полы. Поскольку Камень холоден, то жаркими ночами и знойными днями прохлада пола будет повышать уровень комфорта.
Если же вас отталкивает прохлада каменного пола, то можно будет подобрать ламинат имитирующий дерево или плитку. В марокканских помещениях полы из дерева также не редкость: чаще это наборный паркет и грубоватая доска. Но для большинства случаев, вполне сойдет ламинат.
Хотя самый оптимальный вариант для пола в марокканском стиле – это конечно же керамогранит теплого оттенка (бежевого, терракотового, коричневого). Габариты плитки могут быть различными: мелким (мозаика), средним и крупным.
Применяются также декоративные мозаики и плитки, которые создают неповторимый напольный узор.
Для спальни и зала на полу традиционно кладут ковры.

В холлах и жилых комнатах стены чаще всего отделаны штукатуркой. В Марокко чаще для отделки стен применяют декоративную фактурную штукатурку — таделакт, после применения которой, стены внешне напоминают мрамор. Штукатурка также бывает и обычной. Для этого случая оштукатуренные стены окрашивают белой или цветной краской.
Для помещений с влажным климатом и холлах стены декорируют яркой мозаикой, с помощью которой складывают марокканский орнамент.
У марокканской плитки (вид глазурованной плитки украшенной восточными орнаментами) имеется также свое название — зелидж (Zellije).
Для помещений марокканских домов потолки обычно довольно высокие. Их декорируют одним из часто применяемых цветов. Следуя традициям для помещений общественного назначения, потолок изготовляют синим или голубым – он будет символизировать небо. На границе стены и потолка оформляют бордюр с видом кружевной лепнины, росписи или мозаики.
Для бедных марокканских интерьеров поперек несущих балок укладывали прутья и ветви. Обычно их покрывали с помощью известкового раствора, а иногда даже оставляли совсем без обработки. Подобные потолки создают и в современное время только для того, чтобы внести в жилище этнический дух.
В богатых домах потолки могут быть выполнены из дерева – расписанные марокканским узором или резные. Такая работа очень сложная и достаточно дорогая, но и результат впечатляющий.

марокканский стиль в интерьере кухни
Вот еще несколько отличительных черт марокканского интерьера.
В первую очередь, это многочисленное количество стенных ниш, в которых встраивают канделябры со свечами или светильники, а также картины, книги и другие элементы декора.
Часть из ниш можно украсить с помощью узорчатых кованых решеток.

Дверные проемы чаще делают в форме стрельчатых арок, а сами двери украшают витражами, узорами и резьбой.
Оконные проемы можно украсить изнутри коваными решетками и резными ставнями из дерева.
Интерьер в марокканском стиле почти не имеет прямых углов. Излюбленная форма помещения очень похожа на замочную скважину.

Мебель

Марокканский стиль — это разнообразие и уникальные предметы с причудами.

Марокканский богемный стиль охватывает более нетрадиционную мебель в пользу уникальных и причудливых предметов.

Марокканский дизайн интерьера часто сочетает в себе нежные резные предметы мебели с роскошной пухлой обивкой.

Столы вырезаны вручную, могут быть с инкрустированной плиткой или металлическими конструкциями.

В то время, как плюшевые подушки, диваны, пуфы и пуфики создают расслабленное ощущение комфорта в лаундже.

Мебель в марокканском стиле дизайна интерьера является низкопрофильной для создания непрерывных визуальных эффектов. Она очень разнообразна.

Напольное сидение состоит из ярко окрашенной или узорчатой подушки и мягких подушек.

Наряду с низкими столами, декор в марокканском стиле создает ощущение комфорта.
Мебель почти никогда не сочетается, уникальные предметы подчеркивают их индивидуальную красоту.
У стульев с высокой спинкой может быть вырезанное дерево и используются узорчатые покрытия сидений, отражающие традиционные материалы и ткани.

Предметы декора в марокканском стиле
Сила марокканского стиля – в мелких, хорошо продуманных деталях. Основные идеи, которые способны сделать дом королевством:
- обилие искусных декораций ‒ лепнина, украшения на полках (сувенирная продукция, сделанная вручную), музыкальные шкатулки, сундуки с сокровищами;
- много необычных искусственных источников света, для загадочной атмосферы (торшеры, фонари, свечи, факелы, бра в форме полумесяца, потолочные лампы на золотых цепях, металлические плафоны со вставками дорогих камней);
- художественная роспись по дереву, например ‒ изголовье кровати, покрытой балдахином или низкий, многогранный столик для чаепития;
- ниши в стенах в форме одного, нескольких куполов (также этой формой можно украсить дверные проемы, окна с марракеш);
- кованые предметы интерьера;
- глиняная посуда, подносы, вазы, кувшины, кальяны;
- персидские ковры, паласы повсюду;
- старинный камин;
- множество расписных, ярких подушек с кисточками;
- резные колонны, изогнутая форма потолка;
- тяжелые шторы насыщенных оттенков;
- для обивки мебели используются шерсть и кожа.
                        
                    Создать дворец у себя дома легко, если пользоваться дизайном в стиле МароккоИсточник roomester.ru
            
Декорирование в марокканском стиле состоит из золотого, серебряного, бронзового цвета. Такая гамма подобрана не случайно, цвет дорогих металлов олицетворяет и создает визитную карточку помещения.

                    Роскошно и дорого смотрится сочетание металлических оттенков, декор востока преображает комнату и делает ее более насыщеннойИсточник  rehouz.info
Особенности интерьера
Поскольку марокканский стиль изначально предполагает смешение других направлений, дизайнеры, обустраивая внутреннюю часть дома в таком этническом ключе, смело соединяют древние народные традиции и современные европейские черты. Это позволяет создать универсальный, комфортабельный и экстравагантный интерьер в одном помещении.
В гостиной могут уживаться традиционные стилевые особенности (мозаичные полы, стены, мраморные детали) и современная удобная мебель:


Еще одно непременное условие для марокканцев в доме – ковры с самыми невероятными узорами, ярких расцветок. Коврами украшают пол и в гостиной, и в столовой, и в спальне:



Цветовая палитра
Цветовое оформление особняка в Марокко можно охарактеризовать как феерия ярких насыщенных красок. Основные цвета – синий, голубой, бирюзовый. Лиловый, пурпурный, красный и их оттенки часто встречаются в интерьерах:


Желтый, золотистый, оранжевый, терракотовый, коричневый используются как типичные цвета Африканской пустыни:

Белому цвету придается немаловажное значение как символу чистоты и долголетия. Белыми могут быть стены и потолок или мебель:


Отделочные материалы
Для отделки стен внутренней части помещения помимо традиционных камня и керамической плитки, отлично подходят разнообразные виды фактурной штукатурки с зернистой или гладкой текстурой:


Прекрасно сочетаются в одной комнате мозаичная плитка, дерево и кованые элементы:

Обилие резных деревянных и кованых элементов отличает марокканский стиль от других африканских направлений. Эффектно смотрятся фигурные балюстрады, ограждающие балкон и винтовую лестницу внутри дома:

Мебель
Традиционная мебель для отдыха в марокканском стиле – деревянная, с вычурными резными деталями, без острых углов. Обивка из мягкой ткани, в основном, бархат или атлас:

Следует отметить, что марокканский стиль подразделяется на пышный, роскошный («дворцовый») и простой, лаконичный (рустикальный). В одном доме могут гармонично соседствовать предметы мебели обоих этих направлений. Например, в кухне отлично смотрятся деревянные комоды, острова и буфеты с эффектом брашировки:

А в столовой дорогостоящая отделка мрамором или гранитом, мебель из дорогих пород дерева эффектно контрастирует с грубым дощатым полом:

Детали декора и аксессуары
Керамическая посуда, украшенная мозаикой или росписью, металлические подносы и кувшины, расписные шкатулки и сундуки, кованые люстры – непременные атрибуты марокканского интерьера:


Жаккардовый текстиль − более позднее приобретение марокканского стиля, но они идеально подходят друг для друга:

Экзотическое панно из природного камня причудливой формы и удивительного сюжета подчеркивает необычность и самобытность интерьера:

В заключение следует отметить, что эклектичный марокканский стиль подходит для людей с идейными творческими порывами, любящих разнообразие, яркие краски и простор.
Источник
Оформление разных комнат
Главная тонкость решения оформить дом в марокканском стиле – это необходимость выдержать двери и окна в форме, которая отдаленно напоминает купол мечети. Дверное полотно такой формы найти вряд ли удастся, потому разумнее и проще обойтись арками соответствующего контура везде, где это возможно.
Оформляя гостиную, надо раз и навсегда забыть о скромности – Восток кажется нам таким богатым именно потому, что там принято выставлять напоказ абсолютно все, чем можно похвастаться. Гостиная – это полноценная витрина вашего жилища, так покажите же, что вы добились успеха!
Спальня и детская – это средоточие уюта. Здесь может быть минимум какой-либо другой мебели, штукатурка, но обязательно нужна такая кровать, от которой все просто обзавидовались бы. Это касается не только размеров, но и внушительного балдахина. Узоры в спальне, контакты, пожалуй, не нужны, тут больше подойдут однотонная отделка и такой же текстиль, но при этом они должны быть контрастного цвета, чтобы не сливаться в поиск на глазах.
Санузел и кухня – это такие части жилища, где буквально необходимо на полную раскрыть тему мозаики. Можно придумать миллион причин, почему вы не используете эту деталь декора в других комнатах, но здесь, где плитка в прямом смысле слова обязательна, у хозяев просто не будет ни одного разумного основания отказаться от такого решения.
Можно ничего не выдумывать с заказом какой-то нетипичной сантехники, а вместо этого «перекрыть» ее белизну тона особо яркой мозаикой во всю стену. Кухне при этом обязательно нужны шторы в средиземноморском стиле, создающие атмосферу таверны для легких и приятных перекусов – Марокко ведь тоже непосредственно выходит к Средиземному морю.
Большой балкон в средиземноморских стилях имеет особое значение – в дневное время, когда стоит сильная жара, он должен защищать внутренние помещения от солнцепека, потому ему следует быть крытым, а также украшенным большим количеством зелени.
Спальня в марокканском стиле
Марокканская спальня, как и другие комнаты, имеет минимальный набор мебели: широкую кровать, пару тумбочек и столик. Если помещение просторное, то рядом размещают традиционный диванчик (кушетку, топчан) с кофейным столиком. Акцентную стену у изголовья кровати декорируют нишей, которая имеет традиционный восточный купол с вытянутым кончиком. Его украшают композицией из керамических, стеклянных, глиняных или деревянных элементов. Потолок венчает небольшая люстра, а по обе стороны кровати симметрично устанавливают бра. Окна декорируют коваными решетками. Закрывают их воздушным тюлем. Пол обязательно застилают ковриками. Шлифуют композицию с помощью кальяна, комнатных растений в горшках, тарелок с фруктами и восточными сладостями на столиках.
 
Правила оформления
Культура разных стран сплелись в едином интерьере похожем на сказку, сошедшую с листов романтической книги. Марокканский стиль необычайно красив, многогранен и уникален.
Красные тона в сочетании с золотом наполняют пространство солнечным светом и теплом марокканского климатаИсточник roomester.ru
Основные правила:
- При выборе материалов для отделочных работ стоит отдать предпочтение керамике, мрамору, древесине.
- Мебель лучше выбрать низкую, из ценных пород деревьев или кованую, металлическую.
- Не забываем о комбинации плитки-мозаики и персидских ковров.
- Соблюдаем цветовую гамму: сочетание ярких, солнечных и спокойных морских оттенков.
- Много декораций старинного, этнического стиля.
Волшебная голубая гостиная, переходящая в кухню с марокканскими арками Источник roomester.ru
Восточная сказка становиться былью в интерьере с арабскими мотивами жаркой страны МароккоИсточник www.fresher.ru
Спальня в Марокканском стиле
Марокканский стиль в интерьере используется с целью создания комфорта с этно-акцентами.
Рекомендуется использовать светлую палитру, ограничиваясь теплыми оттенками. Подойдет также сочетание белого с голубым или с оттенком морской волны.
Предметов меблировки в марокканской спальне должно быть немного. Достаточно установить большую кровать с резным изголовьем и невысокий комод с инкрустациями. Над ним можно повесить большое зеркало, что позволит обойтись без туалетного столика.

Характерным элементом интерьера марокканской спальни должны быть сильно задрапированные шторы. Их выполняют из натуральных тканей, в том числе двухслойных, на подкладке. Карниз лучше выбирать деревянным, довольно простого дизайна. Его концы могут иметь вид наконечников копья.
Сделать спальню более уютной помогут многостворчатые ширмы.
За ними можно скрыть большое вешало-стойку, получив, таким образом, своеобразную отдельную мини-гардеробную.
На полу можно расстелить аутентичный берберский или арабский ковер, желательно ручной работы.
Кроме того, психологи утверждают, что наличие множества разнообразных деталей не способствует спокойному ночному отдыху.
Интерьер в марокканском стиле. Аксессуары, текстиль
В марокканских интерьерах всегда много текстиля. Огромное количество напольных и диванных подушек, валиков. Потолки и стены также могут быть задрапированы тканью для имитации арабского шатра. Помещения, потолок которых будет выполнен в виде шатра с натянутым в несколько ярусов текстилем, станет выглядеть, по крайней мере, необычно.
На стенах и полах располагают ковры ручной вышивки.
Окна в марокканских интерьерах украшают роскошные шторы, которые сразу приковывают к себе внимание. Предметы декора выполненные из бронзы или чеканного серебра добавят в помещение дополнительную фактуру, а в вечернее время зажженные свечи будут необычно мерцать в подсвечниках, оформленных в виде фонарей
Но не стоит сильно увлекаться яркими блестящими аксессуарами — а то помещение превратится в жилище шейха. Со светильниками из металла будет хорошо сочетаться мебель, отделанная перламутром
Предметы декора выполненные из бронзы или чеканного серебра добавят в помещение дополнительную фактуру, а в вечернее время зажженные свечи будут необычно мерцать в подсвечниках, оформленных в виде фонарей. Но не стоит сильно увлекаться яркими блестящими аксессуарами — а то помещение превратится в жилище шейха. Со светильниками из металла будет хорошо сочетаться мебель, отделанная перламутром.
При создании интерьера в марокканском стиле вам также пригодятся способности комбинировать различный текстиль — пуфы из кожи, ковры ручной работы, драпировки.

Вот такие основные черты, характеризующие марокканский стиль в интерьере как не обычный, похожий на восточную сказку и манящий к себе.
Решение для отделки
Отделочной части работ посвящается глава в дизайне марокканского стиля. Материалы выбираются по принципу: и это нам нужно.


Оформление откосов дверей и окон должно быть тщательно спланировано. Простые формы не характерны для марокканского дизайна. Рекомендуется отдать предпочтение арочным конструкциям или стрелам, которые олицетворяют купол мечети.

Поклонников украшений стиль порадует. Переусердствовать с материалами здесь просто невозможно. Правило интерьера: сочетать вещи, которые в нормальных условиях не совместились бы никогда. Стоит помнить о плитке в марокканском стиле, которая призвана оформить стены, пол.

Марокканский стиль во внешнем дизайне дома
Внешней отделке дома марокканцы не придают большого значения.
Традиционные дома представляют собой риады – помещения, окна которых выходят на внутренний дворик. Вот здесь изысканность и красота не уступает внутреннему интерьеру.
Двор представляет собой райский сад.
Фонтаны, фруктовые деревья, изящные скамейки и даже диваны с подушками – все обустроено для того, чтобы не было желания выходить на пределы двора.

В архитектуре двора могут присутствовать мавританские арки, чаще в виде подковы или овально-вытянутые.
Особый эффект создают ряды арок, которые обрамляют двор, заменяя собой внешние стены. Центром этого места, как правило, является фонтан. В особо жаркие дни он дарит прохладу и наполняет пространство звуками природы.
Отделка стен и арок может осуществляться с помощью марокканской плитки. Чайный столик также незаменим. Цветовая палитра отличается отинтерьерной.
Она более спокойна и естественна. Оранжевые, синие, зеленые тона могут акцентироваться розовыми, красными, желтыми пятнами.
Большое место отводится растениям и цветам. Кактусы являются самыми популярными и неприхотливыми среди них.
Особый шарм создает зелень, посаженная в большие глиняные сосуды. Так же вдоль дорожек или тротуара будет уместно расположить медные марокканские светильники.
В вечернее и ночное время они озарят путь, а также создадут сказочную атмосферу.
Марокканские дома: риады 🕌
Марокканские риады (виллы со внутренним двориком), медресе (университеты), мечети (церкви) украшены мозаикой, арочными сводами, искусной резьбой и невероятными куполами… Эта красота не может не вдохновлять любителя архитектуры и дизайна интерьера!
Архитектурный дизайн риад восходит к римской эпохе. Считается, что риад является адаптацией типичной римской виллы. Но так как конкретно здесь марокканцем хотелось получить оазис посреди пустыни — возникли райские бассейны и сады. Кстати, кроме риадов (riad) есть еще дар (dar) — такая же вилла, но без сада, просто с мощенным двориком
Марокканский риад — это прямоугольная вилла в два этажа, но в центре у нее — внутренний дворик, окруженный галереями (балконами с крышей). В центре дворика может быть бассейн или фонтан, но обязательно — патио, как летняя гостиная и столовая.
Внутренние дворики делались из-за обилия солнца и жаркого климата, чтобы можно было отдыхать в тени. По размеру риады бывают разные, но средняя площадь — около 400 квадратных метров, потому что и семьи в Марокко исламские и большие.
Большинство риадов, которые дожили до наших дней, до сих пор являются частными виллами или стали бутик-отелями. Они построены в период 1750–1850 гг.
Внутренние дворики — это наследие греко-римской империи, а еще раньше — Ближнего Востока (времен Месопотамии и позже), а что было до этого — мы просто не знаем.
Интересно, что в Индии есть аналог — сады chahar bagh (правда, они гораздо просторнее), а в Испании внутренние дворики стали называться андалузийскими патио (andalusian patio). От обычных патио их отличает именно наличие балконов-галерей и расположение внутри здания (а не сзади или сбоку).
Более раннюю архитектуру с 13 до 19 века можно найти в медресе и мечети. Медресе — это университеты, а мечети — религиозные сооружения. Здесь тоже в центре есть дворик, но он уже похож на площадь, а балконы-галереи — огромные коридоры шириной 4–10 метров. Отличие мечети — минарет и огромный купол в зале для молитв.
Интересно! Купить отреставрированный роскошный риад с дизайнерским интерьером и бассейном можно за 3–5 миллионов евро. Правда, по размеру он будет напоминать мини-бутик-отель.
Отделка
Любая комната в марокканском стиле – это совершенно особенная обстановка, не похожая на стандартную отделку российских жилищ. Вам предстоит выбрать оригинальные материалы, подумать над цветовой гаммой, декорирующими элементами. Только тогда помещение заиграет и позволит ощутить настоящую экзотику
Что же важно учесть, подбирая отделочные материалы?
Стены. Можно использовать привычные обои, например, фактурные, но есть гораздо более интересные идеи. Лучше всего подойдёт специальная марокканская штукатурка, неплохо будет смотреться однотонная окраска или керамическая плитка, причём не только для ванной. Красивым и выразительным решением станет драпировка стен тканями. Приветствуются узоры и орнаменты.

Оформление стен в марокканском стиле
Пол. Ламинат или дерево для покрытия пола используются редко. Для северной Африки, откуда родом этот стиль, дерево было слишком дорогим и оттого не самым популярным материалом. Мозаичная керамическая плитка встречается чаще.

Мозаичный пол – изюминка интерьера
Потолок. Возможна обычная побелка, но по контуру имеет смысл пустить красивый бордюр с причудливым орнаментом. Кстати, узоры на самом потолке – тоже смотрятся эффектно! Можно отделать потолок деревянными панелями или даже тканью, создавая имитацию купола шатра.

Окантовка потолка с орнаментом
— Мечети
Мечети являются самыми важными сооружениями Марокко. В любом городе или деревне вы найдете по крайней мере одну мечеть с высоким минаретом, возвышающимся над городом.

Мечеть Хасана II в Касабланке. Фото: thislifeoftravel.com

Мечеть Аль-Карауин построена в 859 году. Обучение религии и грамоте здесь проводится с 887 года и до сих пор не прекращалось ни на год. Это — старейший действующий университет в мире
Представьте себе сад с фонтаном, арочные галереи для прогулок, стены, облицованные разноцветной искрящейся мозаикой и арочный михраб (ниша, указывающая направление в сторону Мекки) с ажурным и каллиграфическим декором… В Марокко мечеть всегда была самым красивым местом в городе!
Неудивительно, что посетители находят марокканские мечети самым впечатляющим воплощением марокканской архитектуры. Ну, а самые изысканные примеры марокканских мечетей вы найдете в городе Фес, в частности мечеть Аль-Карауин. Имейте в виду, что только Мечеть Хасана II в Касабланке и мечеть Тин мал в сельской местности высоких Атласских гор открыты для посещения немусульманами внутри зданий.

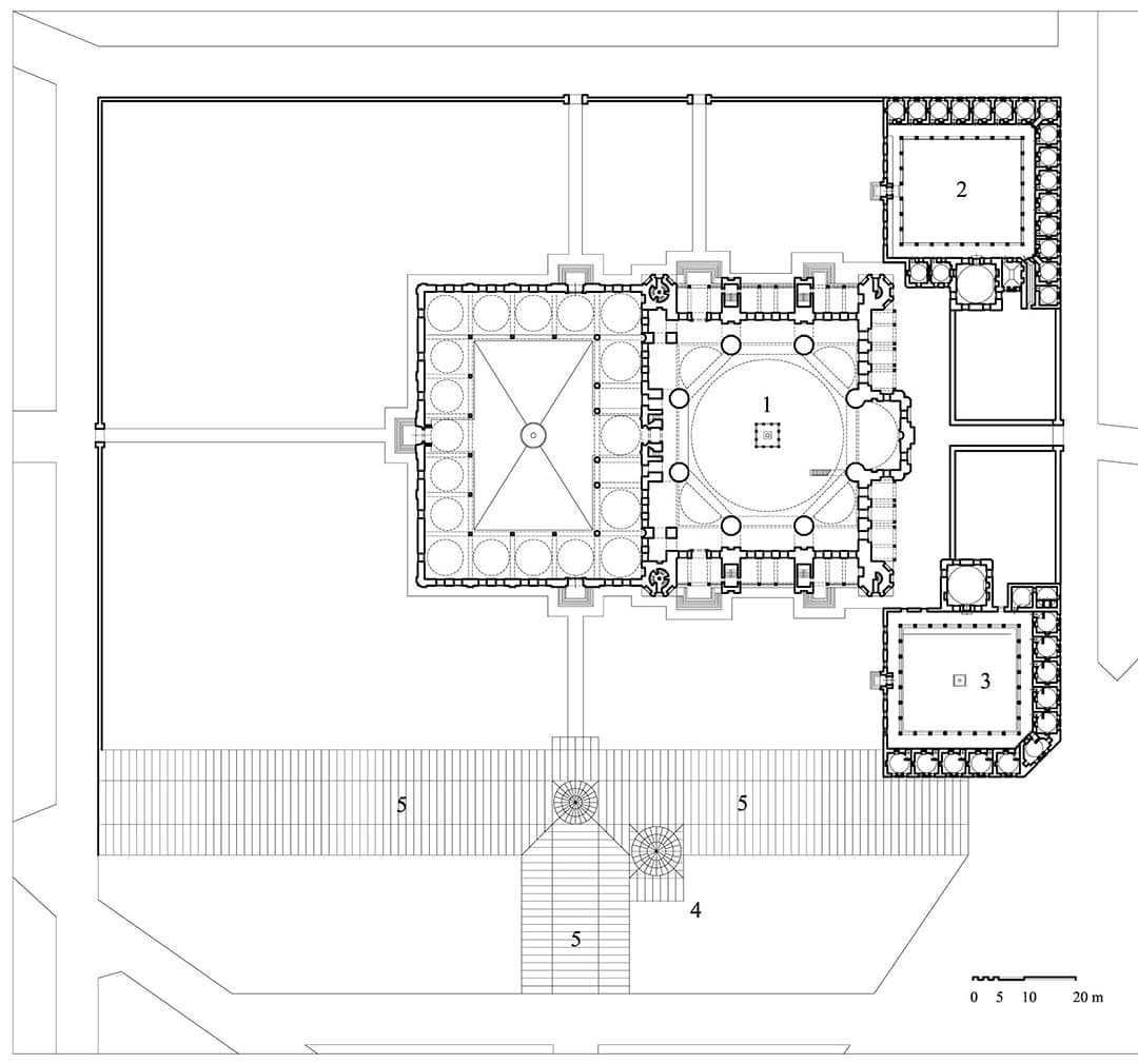
План типичной исламской мечети. Фото: archnet.org
Марокканский стиль в дизайне интерьера
Восточная культура привыкла прятать все самое ценное от посторонних глаз. Не исключение этому марокканская.
Поэтому главной чертой стиля будет создание интимной, таинственной атмосферы. За счет чего это происходит?
1. Окна с видом на природу/внутренний двор
Не только любовь к природе обуславливает этот критерий.
Глаз постороннего не должен видеть происходящее внутри. Поэтому окна не должны выходить на шумную улицу или другое людное место. Такая изолированность создает полный комфорт, препятствует проникновению шумов.

2. Тяжелые портьеры
Даже если первый критерий соблюсти не удалось, использование второго его покроет с лихвой.
Шторы – одно из главных украшений комнаты. Плотные светонепроницаемые ткани служат для защиты от палящего солнца, создавая в помещении полумрак и прохладу.
Обычно их цветовая гамма варьируется в пределах насыщенных цветов: коричневый, красный, охровый. Но возможны и другие оттенки.

3. Ковры
Это могут быть как традиционные берберские ковры, так и арабские. Первый вариант более подходит для утилитарных помещений (коридор), последний же предназначен для гостинной и спальной комнаты.

Царство отдыха и наслаждения – так можно коротко охарактеризовать любое помещение в марокканском стиле, будь то спальня, веранда, кухня или ванная.
Какие же самые знаковые составляющие этого стиля в оформлении интерьера?
1. Большой диван
Чем больше диванов, тем лучше. В традиционном помещении диваны, усыпанные подушками, располагаются по всему периметру комнаты.
Они и составляют основу дизайна любой комнаты.
Его также дополняют низкий столик и низкие кожаные пуфы. Если нагрянут гости, то проблем с их размещением не будет.
Даже, если они останутся на ночь.

2. Марокканская плитка
Это также визитная карточка марокканского стиля.
Глиняная плитка создается по особой технологии, которую подарили марокканцам арабы из Испании. Как и сама мозаичная плитка, ее самобытный геометрический орнамент уникален и неповторим. Чаще всего это квадраты, прямоугольники, ромбы, шестиконечные звезды, восьмигранники.
«Плетение» этих фигур осуществляется с четкими математическими пропорциями.
Плитка подойдет для отделки любых поверхностей — стен, сводов, полов, колонн, ниш и декоративных выступов.

3. Арки
Арки пришли в марокканский стиль из Испании.
Они могут использоваться в качестве формы окон, дверей, переходов в другое помещение.
Чаще всего они вписываются в интерьер в качестве арочных ниш – просто декоративных или выполняющих функцию полок.

Марокканский стиль насыщен декором. Чаще всего каждая вещь выполняет какую-то полезную функцию. При этом она удивительна изящна и красива.
Неповторимый экзотический вкус Марокко дают следующие предметы декора:
1. Изделия из алюминия, меди: марокканский фонарь, вазы, картины, оружие, статуэтки, чаша для мытья рук, подсвечники, светильники.
2. Керамика: тарелки, кувшины, другая посуда, мелкие скульптуры. Марокканская керамика также имеет свои неповторимые этнические узоры. Ее не спутаешь ни с какой другой.
3. Изделия из цветного стекла: зеркала, окна, люстры.
Марокканский стиль в архитектуре частного дома
Хотите, чтобы ваш частный дом вызывал восхищение? Выбирайте мавританский стиль. Он предполагает использование в качестве украшений множество арок, установленных на изящных колоннах, часто витой формы. Оконные проемы также должны иметь стрельчатую или аркообразную форму.
Одно из характерных черт марокканцев является стремление спрятать свою частную жизнь от посторонних глаз. В связи с этим в домах жителей Марокко окна выходят во внутренний двор. Такая изолированность имеет и положительные стороны. В частности, обеспечивает прекрасную звукоизоляцию и комфорт всем, кто находится в помещениях.
При создании экстерьера марокканского дома должны активно применяться кованые элементы декора, а также светильники с цветными стеклами в традиционном стиле, характерном для Северной Африки.
Дизайн внутреннего дворика
Во внутреннем дворе, согласно традициям, проникшим в Северную Африку из Испании, обычно обустраивается бассейн или небольшой фонтан. Его принято окружать большими кадками с апельсиновыми или другими деревцами.
Особое внимание уделяется входным дверям. На протяжение веков их главной функцией была защита от непрошеные гостей, поэтому двери должны быть деревянными, массивными, двустворчатыми, в форме усеченного овала
Для их украшения используется массивная металлическая фурнитура и кованые украшения.
Интерьер кухни в марокканском оформлении
Кухня в марокканском стиле схожа с другими комнатами. Это теплый и светлый интерьер. Существует несколько рекомендаций, которые помогут воссоздать этот экзотичный дизайн:
- Цветовая гамма – исключительно теплые и приятные оттенки. Акценты лучше выполнить в красных или оранжевых цветах. Без орнаментов марокканский стиль также не представляется возможным.
- Плитка – это особенный элемент в декорировании и отделке помещения. Своими орнаментами марокканский стиль на кухне придает яркости и неповторимости. Плитка, мозаика – все это дополняет общую картину арабской ночи необычными и уникальными узорами на стенах и на полу.
Статья по теме: Основные принципы стиля шебби шик: нюансы оформления
- Детали и текстиль. Занавески должны быть выполнены из легких, «летящих» материалов. Можно выбрать шифон или шелк. На них обычно создают различные аутентичные узоры. Рекомендуется украсить пол коврами с орнаментами. Подносы, чайники лучше приобрести из меди. Стены украшают с помощью декоративных тарелок. Посуда должна быть красочной, сделанной из керамики. Серебряные светильники и ароматические свечи также будут уместны.
Декоративные подушки в марокканском стиле
Светильники в марокканском стиле
Декоративные тарелки в интерьере
Поднос и чайник в марокканском стиле
Шторы с марокканским узором
- Мебель. Стрельчатые дверцы и проемы должны дополнять кухонный гарнитур. На стульях и столах могут присутствовать резьба и декор. Мягкую мебель принято декорировать с помощью металлических деталей.
Декор мебели
Декоративный диван
Столик в марокканском стиле
Кровать в марокканском стиле
Зеркала в марокканском интерьере
Марокканский стиль: ванная
Марокканский стиль в интерьере ванной можно охарактеризовать словом «шикарный». Как уже было упомянуто выше, в этой стране производят роскошную керамическую плитку. С ее помощью любой может реализовать марокканский стиль в интерьере ванной, создав красочный и привлекательный интерьер.
Сразу следует предупредить, что пестрая мелка плитка — не лучший выбор для маленькой ванной. В результате ее использования такое помещение станет визуально более тесным.
Для малогабаритной ванной комнаты подойдет крупная плитка. Вы можете также использовать более мелкую в качестве бордюра совместно с однотонной.
Наряду с плиткой в отделке может использоваться таделакт. Он представляет собой особую штукатурку. По внешнему виду она близка к мрамору и позволяет создавать красивые глянцевые поверхности. Чтобы добавить интерьеру яркости, его украшают цветными фризами из мелкой плитки.
Ванная в марокканском стиле может иметь винтажный колорит. Его обеспечивают путем использования сантехники с соответствующим дизайном. Краны и смесители должны иметь «старинный» дизайн и не выглядеть новыми. Не стоит использовать хромированные варианты.
Интересно будет смотреться раковина, выложенная мелкой мозаикой.
Опять же стоит подумать об обустройстве ниш. Подойдут как декоративные варианты, так и варианты, выполняющие утилитарные функции.
Для декора ванной подойдет также большое зеркало в медной раме. Идеально если она будет чеканной.
Для кого подходит восточный интерьер?
Помещение, оформленное в марокканском стиле, понравится многим, но не все смогут постоянно в нём обитать.
Восточный интерьер подойдёт нескольким типам людей:
- Любителям порядка. Каждый элемент обстановки имеет своё значение и ставится на определённое место. Любое изменение приводит к нарушению гармонии.
- Минималистам. Марокканский стиль — это большие помещения, наполненные светом и воздухом. Исключается нагромождение мебели и вещей, приветствуются небольшие сундуки, циновки.
- Любителям экспериментов и Востока. Для создания аутентичного марокканского интерьера нужно иметь представление об истории и культуре страны, её главных традициях и верованиях.
Детали
Особое внимание в марокканском стиле уделяется деталям:
- Небольшие, но емкие дополнения в виде витых шнуров с тяжелыми изукрашенными кистями.
- Кованые светильники с дополняющими их ночниками под потолком, имитирующими ночное небо над шатрами.
- Многочисленные сундучки и мини-комоды, хранящие несметные богатства в виде, к примеру, украшений хозяйки или коллекции ее духов и косметики.
- Разнообразные рисованные узоры и сложнейшая миниатюрная мозаика, которой может быть украшен любой предмет мебели или деталь интерьера. Более того, допускается смешение разнообразнейших узоров в одном ансамбле.
- Все предметы обстановки должны выглядеть так, словно их создавали человеческие руки, а не бездумные машины.
Как можно видеть по многочисленным фото интерьера, марокканский стиль базируется на непредсказуемости и контрасте цветов и форм. Но это не значит, что внешний вид помещения, оформленного в таком стиле, выглядит безумным и хаотичным.
Искусное владение приемами декорирования позволяет пренебрегать тремя китами европейского дизайна: лаконичностью, чувством меры, совместимостью цветов и фактур, и создавать самобытное жилище, дышащее страстью и уютом.

Как формировался марокканский стиль в интерьере
Даже те из нас, кто интересуются интерьерными направлениями современностями, не всегда четко представляют себе богатую историю этого этнического дизайна, а без этого невозможно понять базовые, основные марокканского стиля в интерьере. Так что, решившись на оформление комнаты или помещения в таком дизайне, придется сделать небольшой экскурс в историю.
- Страна под названием Марокко расположилась на северо-востоке Африканского континента. До Европы – каких-то полтора десятка километров водной глади Гибралтарского пролива. История страны представляет собой пеструю смесь традиций и культур, которые формировались, по большей части, в условиях войны между коренным населением – берберами – и разнообразными колонизаторами. В начале здесь успели отметится римляне, под влиянием которых воинственные берберы несколько остепенились, принялись строить города и приняли христианство.
- Но приход арабов снова заставил местных жителей менять привычный уклад жизни. Арабы принесли с собой объединение разрозненных земель и ислам. Успех арабских завоеваний сделал Марокко центром империи, в которую вошли многие африканские страны, включая Алжир, Тунис. Воинственные арабы не оставили в стороне и Европу, включив в список трофеев часть современной Испании и Португалию.

- Естественно, такая пестрая и богатая история просто не могла не оставить следов в культуре и традициях Марокко, пестрота и разнообразие которых, в буквальном смысле, поражают. Арабские, греческие, африканские черты дополняются отголосками греческого классицизма и испанского романтизма. Все это варится в ярчайшем котле красок, богатства природных ландшафтов и местных самобытных обычаев.
- В результате такого симбиоза возник весьма красноречивый, легко узнаваемый, сочный и колоритный марокканский стиль. Новый импульс ему, как это ни странно, обеспечили испанцы, в средние века восстановившие свой суверенитет и гнавшие захватчиков до самого Марокко. Страна быстро погрузилась в пучину бесконечных междоусобных и этнических конфликтов, поэтому развивать интерьеры лет триста было просто некому, да и не за чем.
- Возрождение Марокко, начавшееся в 16-17 веках, дало новый толчок развитию художественного и интерьерного искусства. В хитросплетение марокканских традиций добавились и европейские, как следствие влияния богатых европейских колонистов, которые к 18 веку владели половиной страны.

К середине 20-го века африканские страны обрели независимость, и в структуре марокканского стиля с полным правом утвердились этнические африканские мотивы.

 
            













![Марокканский стиль в интерьере [75 фото примеров] (90+ фото) | дизайн интерьера в марокканском стиле](http://dezinformation.ru/wp-content/uploads/9/2/4/924c1ae280beb34c1255c8d01d26cbc5.jpeg)












