Особенности
Дом на две семьи с раздельным проживанием и отдельными входами — прекрасный вариант для семейств, состоящих из разных поколений. В подобном жилище проживают родители, дети и внуки, имея в то же время высокий уровень приватности.
Строения для двух семей с раздельным проживанием имеют названия твинхаусы или дуплексы. Это название пришло к нам из Великобритании, где впервые появились подобные дома. В этой стране уже не первый век практикуется строительство жилых зданий в таком формате. Многим землевладельцам такой вид во многом предпочтительнее, чем дом на одного хозяина. Любой проект твинхауса может отличаться какими-либо индивидуальными чертами, однако традиционная планировка с раздельным входом является наиболее функциональной и популярной.
Каждый проект может быть особенным и уникальным, но дома с отдельными входами пользуются наибольшим спросом. В этом случае семьи могут вовсе не пересекаться друг с другом. Участок, как и хозпостройки, делят на две части, или оставляют в общем пользовании.
Оригинальность и креативность особняка
Внутренний сад – не столь распространенный вариант использования придомовой территории, поэтому такие дома выглядят интересно и необычно. Кажется, что что благоустроенный участок – это продолжение внутреннего жилого пространства. Архитекторы практически окружили сад с живыми деревьями, спроектировав дом вокруг него. Этим самым они превратили участок в обитель спокойствия и уюта под открытым небом в непосредственной близости от жилого пространства.
Таким образом, дом с внутренним садом – это практичное решение для особняков, возводимых на небольших участках в окружении городской застройки без видовых пейзажей. Практически не имея выхода к живой природе, жилье становится тесно связанным с ней. Из окон выходит вид на живые деревья, газон. Можно отдохнуть в собственном саду, скрывшись от посторонних, даже если особняк находится в районе с тесной застройкой.
| Architects | uemachi laboratory |
| Photo | Kazushi Hirano |
Инженерная часть проекта делится на несколько частей
- схема водоснабжения
- схема канализации
- общий вид системы.
Прежде, чем приступать к проектированию, необходимо определиться, какая будет коммуникация — индивидуальная или подключенная к централизованной системе.
Индивидуальное водоснабжение дает полную независимость от внешних условий. Но необходимо помнить, что понадобятся собственные источники воды, а бурение скважины обойдется в приличную сумму.
Подключение к централизованной системе потребует разработки проекта в соответствии с техническими условиями существующей сети и получение разрешения на врезку.
При подключении канализации к централизованной системе, порядок работы такой же, как и при подключении водоснабжения: оформление запроса в соответствующие службы, разработка проекта, получение разрешения на врезку в систему. Если вы решили организовать индивидуальную канализационную систему, то время от времени вам придется приглашать ассенизаторскую службу.
Отопление и вентиляция (ОВ)
- схема отопления: расчет необходимой мощности оборудования, схемы распределения теплотрасс, расположение труб и радиаторов
- схема вентиляции: привязка к силовому электрооборудованию, вентиляционные коммуникации и шахты, узлы проходов и, если необходимо, места размещения печей и каминов
- обвязка котла (если необходимо)
- общие указания и рекомендации по разделу.
Если система вентиляции это всегда индивидуальное проектирование, то отопление может быть как индивидуальным (печное, воздушное, водяное, электрическое), так и с подключением к централизованным сетям.
Электроснабжение (ЭТР)
- разводка освещения
- разводка силовых сетей
- схема ВРУ
- система по заземлению
- детальное описание и характеристики всех элементов системы.
Электрические системы можно разделить на обязательные и дополнительные. К обязательным относятся внутреннее и наружное освещение, системы вентиляции, кондиционирования и электроотопления. К дополнительным можно отнести такие системы, как «Теплый пол» или автоматизированное управление воротами.
ВАЖНО
- В каждой из частей инженерного раздела проекта должны содержаться общее и технические описания, спецификации материалов и необходимого оборудования.
- Чертежи элементов всех систем и поэтажной электрической разводки выполняются в масштабе 1:100.
II-57
Строительство панельных домов серии II-57, автором которой является МНИИТЭП (часто можно встретить обозначение этой серии как П-57), началось в 1963 году. Первой была 9-этажная версия (II-57-А/09). Первые этажи выполнялись жилыми и нежилыми, причем в последнем варианте встречаются 10-этажные версии зданий.
Фото домов серии II-57-09
В скором времени серия стала 12-этажной (II-57А/12), и в этих домах впервые для массовой застройки в подъездах появился грузопассажирский лифт. Кроме того, в серии впервые применили принцип отопления с помощью нагревателей, размещенных внутри панелей (теплые подоконники).
Дома серии II-57-12
Отличительной особенностью данной модификации является конструкция здания с открытыми столбчатыми опорами ( на ножках) и наличие над ними технического (второго) этажа.
Фото дома серии дома серии II-57-17
Также редко можно встретить варианты II-57-05 и II-57-07. Кроме этого, освоенные в производстве детали серии использовались для создания различных жилых и нежилых зданий.
В подъездах домов II-57 по два лифта (два пассажирских в девятиэтажке и пассажирский и грузовой в более высоких модификациях). Для серии характерно наличие балконов на всех этажах и раздельная планировка санузлов.
- Квартиры в серии 1,2, и 3 комнатные.
- Однокомнатная квартира имеет 34-35 м2 общей площади и 17-18 м2 жилой.
- Для 2-комнатной квартиры общая площадь составляет 45-46 м2 и около 30 м2 жилая.
- Трёхкомнатная квартира общей площадью около 62 м2 имеет жилую площадь 41-42 м2.
- Кухни во всех квартирах невелики от 6 до 9 м2, причем самыми большими по площади располагают однокомнатные квартиры.
Как интегрировать дом с внутренним двором в ландшафт?
Архитектурное бюро Matt
Fajkus Architecture представило новый дом
с внутренним двором в Остине (США), площадью 450 кв.м. Объект стал примером
того, каким должен быть ландшафтный дизайн, чтобы зеленая придомовая территория
удовлетворяла потребности современной семьи и удачно интегрировалась с жилым
домом в трендовом минималистическом стиле.
Рассмотрим особенности
архитектуры и ландшафта, за счет которых особняк стал особенно комфортным для
проживания.
Плавные переходы между пространствами в проекте дома буквой п с внутренним двором
Строгие границы между
социальными зонами внутри дома и местами для отдыха на улице отошли в прошлое.
Сейчас, чем больше предусмотрено возможностей для интеграции этих пространств –
тем они практичнее.
Со стороны внутреннего
двора в доме сделано панорамное остекление – конструкции можно открывать. Зразу
за ними идет терраса. Между гостиной и местом для отдыха на улице практически
безбарьерная среда. А уже в паре метрах отсюда расположен бассейн. Объект
выглядит единым целым – зона отдыха на свежем воздухе стала продолжением
внутреннего социального пространства.
Чтобы еще больше сгладить
переход, над террасой частично сделан навес, который по сути является
продолжением потолка гостиной. Освещение здесь выполнено по такому же принципу,
как и в доме.
Частный дом с внутренним двором — Дом и двор как единый приватный искусственный объект
Дом с внутренним двором представляет собой единую конструкцию. Зоны отдыха,
бассейн и газоны вместе с домом находятся не просто на земле, а на так
называемом подиуме или террасе. Такой прием позволил еще больше интегрировать
придомовой ландшафт и здание друг с другом.
Основные функциональные
зоны внутреннего двора тесно объединены непосредственно с жильем. А за счет
П-образной формы здания, эта придомовая территория получается окружена ним.
Особенность такого приема еще и в том, что двор закрыт от взглядов снаружи –
единственная открытая часть этого придомового пространства выходит в сторону
сада. Но даже с этой стороны архитекторам удалось добиться максимальной
приватности придомовых зон отдыха. Зато из них открываются впечатляющие
панорамные виды.
За счет подпорной стенки,
образующей своеобразный подиум или террасу с домом с внутренним двором, вся приватная территория имеет четкую
границу. Благодаря расположению на возвышенности здание и придомовые зоны
отдыха не просматриваются со стороны сада. Для еще большей приватности
территории на подпорной стенке высажены небольшие деревья. Они также играют
важную эстетическую функцию – в дизайне всего участка сделан акцент на живой природе,
озеленении, экологичности и натуральности.
Представленный проект –
образец того, как сделать жилье и придомовые зоны отдыха открытыми и удобными,
но при этом добиться их приватности. Дом
вместе с внутренним двором представляют собой единое самодостаточное
искусственное пространство, не имеющее строгих границ между собой, но четко
отделенное от внешнего мира.
| Architects | Matt Fajkus Architecture |
| Photo | Charles Davis Smith Spaces & Faces Photography |
Особенности проектов зимних садов в доме
Зимний сад имеет вид прозрачного сооружения, способное визуально расширять границы данного помещения. Стеклянное сооружение обустраивается дополнительно системой отопления в зимний период, вентиляции и полива растений.
Простота сооружения способствует к обустройству даже балкона в городской квартире.
В частном доме можно сделать зимний сад на мансарде или организовать на остекленной и утепленной веранде, если дом одноэтажный.
Особым стеклом являются специальные энергосберегающие стеклопакеты. Они состоят из двух или трех стекол, внутри которых находится воздушная подушка, сберегающая тепло внутри мансарды.
Стеклопакеты не только спасают в зимнее время, но и помогают в летнее время. Летом они не допускают сильного нагревания помещения, что положительно влияет на растения и людей. Солнечные лучи, проникающие внутрь остекленной оранжереи, способствуют созданию парникового эффекта. Этот эффект и используется для роста растительности внутри помещения.
Всю информацию про виды сайдинга для обшивки дома, вы найдете .
Наличие системы отопления не является обязательным элементом, ведь основное назначения таковой, заключается в создании микроклимата и определенной температуры. Если мансарда сооружается из двойного или тройного стекла, то зачастую отопление не требуется. Но, при строительстве пристройки из одинарного стекла наличие системы является обязательным, чтобы флора не вымерзла зимой, ведь некоторые растения не выживают при температуре ниже +15 градусов.
Мансарда из одинарного стекла должна снабжаться дополнительно затемнителем. Затемнитель предназначен для не допустимости перегрева помещения свыше +30 градусов, что отрицательно скажется на их росте или вовсе их погубит.
Создание герметичности помещения является важным моментом, ведь щели могут способствовать проникновению холодного воздуха в пристройку
Наличие автоматической системы полива является необязательным, но полив важно осуществлять практически ежедневно. Автоматическая система полива обусловит облегчение труда человека. Необходимо предусмотреть также систему освещения.
Необходимо предусмотреть также систему освещения.
В зимний период не всегда часто светит солнце, к тому же дни в это время года короткие. Поэтому необходимо присутствие дополнительного освещения – искусственного. Это основные особенности обустройства дома с зимним садом
Важно также предусмотреть наличие вспомогательного оборудования для развития растений
Пакет «Антилед»
Ваш комфорт и безопасность в зимнее время
Цена
4 500
руб.
Пакет «Молниезащита»
Зачастую застройщики не придают большого значения защите собственных домов от молнии: кто-то экономит, кто-то считает, кто-то надеется на «авось». Но года через 3-4 после постройки дома, многие вспоминают о защите от молнии. Толи у соседа в грозу погорела вся бытовая техника, толи на глаза попалась статистика о том, сколько за год случается пожаров из-за молний.
Предлагаем решить вопрос сразу: предусмотреть защиту уже на стадии проектирования дома. Об этом стоит задуматься хотя бы из чисто эстетических соображений — не нужно будет лишний раз долбить стены дома и тянуть токоотвод по фасаду, нарушая продуманный внешний вид здания.
Защита дома от молнии — это система устройств, расположенных как вне дома, так и внутри помещений. Внешняя молниезащита предупреждает попадание молнии в дом, внутренняя — обеспечивает защиту электросети от резких скачков напряжения. А специальные устройства защищают электротехнику от резких изменений электромагнитного поля в радиусе удара молнии.
Плюсы и минусы дома ii-57
Достоинства
- по два окна в угловых квартирах в одном помещении (увеличивает обзор и освещенность помещений);
- присутствие тещиной комнаты (кладовки);
- есть встроенные шкафы;
- срок эксплуатации зданий разный некоторые подходят под реновацию;
- присутствуют кладовые в некоторых двушках и трешках;
- большие балконы на торцах строения;
- наличие два и даже 3 балкона:
- обособленные санузлы;
- в качестве дополнительного места хранения есть антресоли.
Недостатки
- мелкие прихожие, невозможно поставить шкаф;
- малогабаритные кухни;
- неудобство при расстановке мебели вызывает 2 окна в угловых помещениях;
- грузовой лифт в многоквартирниках до 10 этажей не предусмотрен;
- наличие проходной (неизолированной) комнаты в некоторых трешках;
- наличие объединенного санузла в некоторых однушках;
- есть риск что потекут межпанельные швы.
Разновидности (модификации) серии ii-57
Различают следующие версии домов 57 й серии в зависимости от этажности количества секций и вариантов комплектации жильем (квартирографией)
| Шифр проекта | Этажность (количество
этажей) |
однушки | двушки | трешки | Общее количество квартир в доме | Количество секций |
| П-57-03/9 ЮА | 9 | 27 | 30 | 51 | 108 | 3 |
| П-57-04/9ЮА | 9 | 36 | 40 | 68 | 144 | 4 |
| П-57-05/9ЮА | 9 | 44 | 49 | 86 | 179 | 5 |
| П-57-05/9 МА | 9 | 4 | 129 | 46 | 179 | 5 |
| П-57-07-9ЮА | 9 | 62 | 69 | 120 | 251 | 7 |
| П-57-07/9МА | 9 | 6 | 181 | 64 | 251 | 7 |
| П-57-011/9ЮА | 9 | 97 | 108 | 189 | 394 | 11 |
| П-57-03/12 ЮА | 12 | 35 | 38 | 70 | 143 | 3 |
| П-57-03/12 МА | 12 | 2 | 104 | 37 | 143 | 3 |
| П-57-05/12 ЮА | 12 | 59 | 64 | 116 | 239 | 5 |
| П-57-05/12 МА | 12 | 4 | 174 | 61 | 239 | 5 |
| П-57-07 12 ЮА | 12 | 83 | 90 | 162 | 335 | 7 |
| П-57-07/12 МА | 12 | 6 | 244 | 85 | 335 | 7 |
В некоторых версиях домов присутствовали поворотные вставки (угловые секции). Повернутые под 90 и примерно 70 градусов. В них присутствовали четырехкомнатное жилье с 3 балконами.
Также были построены экспериментальные многоэтажные строения в 17 этажей и 25 этажей (дом на ножках (колоннах)).
Толщина внутренних стен таких высокоэтажных зданий была уже 160мм.
Еще проектировалась редкая версия п-57/10 -в 10 этажей.
Также есть уникальные индивидуальные проекты 13 и 14 этажные здания, которые не очень похожи на первоначальную серию с прямыми или скошенными балконами.
Самыми распространенные дома были девяти и двенадцатиэтажные. Девятиэтажки строили в период с 1964-1970 ориентировочно, двенадцатиэтажные с 1971 по 1978 г.г..
Очень похожий дом на п-57 была серия И 286, планировки которой в основном отличались наличием и месторасположением или отсутствием шкафов встроенных, другой планировки лестничной клетки с лифтами.
А также наличием на первом этаже административно-бытовых помещений (магазинов и т.д.)
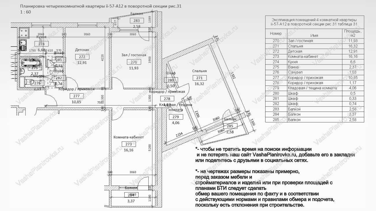
В таблице экспликации помещений П57 расположенной на чертежах можно увидеть метраж помещений по каждому отдельному жилью Чертежи ii-57 показывают расположение комнат в квартире, длину и ширину помещений, и их площадь и название.
Ниже представлены варианты планировки жилья пятьдесят седьмой серии зданий разных модификаций.
ii 57 планировка 1 комнатной квартиры с размерами угловой
п 57 планировка с размерами однушка угловая
План однокомнатной квартиры ii-57 в рядовой части (широтной)
Чертежи однокомнатной квартиры ii-57 (меридиональной)
План однушки ii-57-А12 с размерами в центре здания (широтной)
Планировка однушки распашонки ii-57-03 м с размерами (два балкона)
Планировка однушки п-57-03 м (в центре)
План однушки ii-57-03 м в центре дома
Чертеж однушки ii-57-09 с размерами в рядовой части
План двухкомнатной квартиры ii57 с размерами рядовой в торцевой секции
Планировка двушки п-57 с габаритами в середине (широтной)
Чертеж двушки ii57 с размерами (меридиональной)
Планировка двушки п-57 с размерами в середине (меридиональной)
Чертеж двушки ii-57 с размерами в рядовой секции (меридиональной)
Планировка двухкомнатной квартиры п-57-03 м в рядовой секции
Планировка двушки ii-57-05 с размерами (центральная)
План двушки п-57-05 в рядовой части
Чертеж двухкомнатной квартиры ii57-09 в середине (широтной)
Планировка двушки п-57-09 с габаритами (меридиональной)
План двухкомнатной квартиры ii-57-А12 с размерами (меридиональной)
Чертеж двушки п-57-а 12 с размерами
Чертеж 2 комнатной квартиры ii-57-А12 с размерами
Планировка трехкомнатной квартиры ii-57-05 в середине
п 57-05 планировка с габаритами 3 х комнатная квартира (распашонка)
ii57-05 планировка 3 комнатная с размерами (меридиональной)
ii-57-А12 планировка 3 комнатной квартиры распашонки (2 балкона)
Планировка трешки ii-57-А12 угловой
Угловая трешка п-57-А 12 с размерами
ii-57 план трешки рядовой в торцевой секции
п57 планировка 3 комнатной квартиры в середине (широтной)
ii 57 планировка 4 комнатной квартиры в поворотной секции
Особенности планировки
В 12-тиэтажных модификациях, вместо двух пассажирских, присутствует пассажирский и грузопассажирский лифты. Квартиры обогреваются с помощью «теплых подоконников» – внутрипанельных нагревателей, что создает определенные сложности во время капитального ремонта.
Планировка квартир серии II-57 достаточно удачна за счет хорошей площади. В однокомнатных она составляет 34-35 м2, в двухкомнатных – 45-46 м2, в «трешках» – 61-62 м2. Площадь кухни самая большая в однокомнатных (8-9 м2), а в остальных – не превышает 6-7 м2.
Особенность трехкомнатных квартир – распашной характер комнат, которые даже в начальном варианте – изолированы.
Варианты типовых планировок
К выбору плана дома с 1 этажом очень важно грамотно подойти, чтобы он отвечал всем требованиям семьи. Рассмотрим несколько типовых планировок домов в 200 квадратов
Дом с гаражом и террасой
Отличный вариант для кирпичных построек, который подойдёт семье с 2-3 детьми. Данная планировка позволяет грамотно распределить всю площадь. Здесь есть прихожая размером 9,5 кв. м, где можно поставить большой шкаф, дополнительно гардеробная 5,6 кв. м. Холл 11,9 кв. м открывает большую зону, в которую входят кухня 10.1 кв. м и гостиная-столовая 37,8 кв. м. Столовая имеет выход на террасу размером 19,1 кв. м, на которой свободно расположатся обеденный стол и диван с креслами и журнальным столиком. В доме также имеются три спальни по 15,5 кв. м, большая ванная 4,8 кв. м, санузел 4 кв. м и постирочная 2,4 кв. м. Большой гараж на два автомобиля 47,6 квадрата имеет прямой выход в гардеробную дома и техпомещение.
Дом с 4 спальнями
Типовой проект для каркасных домов отличается большой зоной кухни-столовой-гостиной общей площадью 72,2 кв. м. Идеальное место для сбора всей семьи. Дополнительно к кухне идёт небольшая кладовка. Четыре спальни, две из которых оснащены собственными ванными комнатами, смогут полностью удовлетворить потребности многодетной семьи. Дополнительно идёт общий большой санузел и техпомещение.
Дом с 3 спальнями и 2 террасами
На входе терраса 13,7 кв. метра. При входе в дом вы попадаете в просторный холл 15,2 кв. м, который ведёт в гардеробную 7,2 кв. м, гостевую спальню 16,3 кв. м. и ванную комнату 8 кв. м. Раздвижные двери ведут в большое помещение 44,4 кв. м, где объединены кухня, столовая и гостиная зоны. В столовой находится дверь, ведущая в холл, откуда можно попасть в большой санузел 11,2 квадрата и две спальни 16,3 и 16,4 кв. м. Последняя имеет собственную гардеробную 5,4 метра и выход на небольшую террасу 7 квадратов.
Дом с мансардой и гаражом
Такой дом можно считать полутораэтажным, так как у него есть мансарда площадью 43 метра квадратных, которую можно использовать в качестве игровой или ещё одной спальни. С крыльца вы попадёте в небольшую прихожую, которая ведёт в основной холл 17,4 кв. метра. Большая объединённая зона гостиной-столовой с кухней размером 48,8 кв. м имеет выход на просторную террасу 22 квадрата. Две спальни размером 12,6 и 12,4 м2, одна из которых имеет собственный санузел. Имеется ещё одна комната 13,9 кв. м, используемая в качестве кабинета. Мансардное помещение в 43 кв. метра можно использовать по усмотрению хозяев.
Дом с 4 спальнями и большой террасой
Отличный вариант для многодетной семьи или тех, кто любит принимать гостей с ночевкой. Из тамбура вы попадаете в небольшую прихожую 6,43 кв. м, которая ведёт в холл 17 кв. метров и гардеробную 8 квадратов. Из холла открывается большое пространство, где расположены гостиная 25,1 кв. м и кухня-столовая 18,4 кв. м. В гостиной находится дверь, ведущая на большую открытую террасу 32,4 м2, где можно свободно расположить большой стол, садовые кресла, диван и мангал для барбекю. В доме имеются два санузла площадью 7,4 и 3,8 квадрата. Четыре спальни: две по 17 кв. метров, 11,2 и 13,4 кв. м.
Московские панельные и блочные дома серия II-57
Вторая волна массового панельного домостроения в СССР состояла из таких схожих и таких разных типов домов, что иногда удивляешься: вроде более новая модель, но вот это решение и вот это уже встречались.
Серия II-57 — типичный представитель таких решений. Известно примерно 17 модификаций только в Москве. Строились эти дома ДСК-3 (разработано всё тем же МНИИТЭП) с 1964 по 1978 года, при этом девятиэтажную версию закончили производить в 1970, а двенадцатиэтажную начали в 1971.
Понятное дело, что в 12-этажке стало два лифта, один из которых грузовой. А вот в девятиэтажных домах последних годов выпуска я лично видел панели под два лифта, хотя по факту стоит один (два ставили нечасто, ибо дорого+СНиПы позволяют).
Проёмы заложены и заштукатурены. Внешне II-57 можно узнать по треугольным балконам: одинарным (по краям здания), сдвоенным и счетверённым (правда, есть версии и с более привычными по другим сериям прямыми балконами). А вот с торцов здания балконы могли быть (ранние версии), а могли не быть. А на Звёздном бульваре есть II-57 (первый, кстати, с электроплитами), у которого в торцах просто окна.
Планировка местами другая. Например, в трёхкомнатных квартирах две комнаты и кухня выходят на сторону подъезда, а оставшаяся на противоположную, при этом у двух комнат есть балконы (это в самой распространённой планировке). Мусоропроводы на межэтажных площадках (впрочем, это и в более поздних П-30 (которые и сменили II-57)—П-46-П-47-П-55 повсеместно).
Цифры говорят вот что: толщина трёхслойных наружных панелей 320 мм, внутренние несущие стены — 160 мм, перегородки 80 мм, перекрытия 140 мм, заявленная высота потолков 2,64 м, по факту 2.55-2.64 м.
Интересные факты. На базе II-57 были построены 17-этажные дома на Проспекте Мира и Смоленском бульваре. Их планировка заметно отличалась от 9-12-этажных версий.
Были планы построить 16-этажки в Тропарево, но что-то пошло не так (с) А вот 13-этажку построили. И тоже «на ножках».
Обозвали её отдельной серией И-286, заодно сделав первый этаж нежилым и шире на один шаг (т.е. на одно помещение в секции). Справедливости ради, скажу, что и обычные II-57-12 иногда по факту были 13-этажками: первый этаж отдавался на откуп магазинам и нередко строился на стилобате или просто сваях.
Перепланировка 3-комнатной квартиры в панельном доме серии II-57
В состав строительных мероприятий проекта перепланировки вошло:
- Устройство проема в несущей стене между кухней (4) и жилой комнатой (3);
- Перенос туалета;
- Расширение ванной комнаты на площадь уборной;
- Демонтаж встроенной мебели;
- Демонтаж простенка между коридором (7) и жилой комнатой (3);
- Остекление лоджии;
- Замена и перенос инженерного оборудования в санузле.
План трехкомнатной квартиры в панельном доме серии II-57 после перепланировки
Обычно при перепланировке мокрой зоны в панельном доме устраивают совмещенный санузел, но этот пример интересен тем, что площадь ванной расширилась на площадь уборной, а сам туалет с переносом унитаза расположили на площади коридора. Из жилой комнаты (3) сделали проходную, демонтировав простенок, отделявший ее от коридора.
Краткое описание
- Дома серии II-57 получили широкое распространение в Москве и являются типичными представителями второй волны индустриализации в строительстве.
- Девяти- и двенадцатиэтажные версии серии II-57 пошли в строительство с разрывом всего пять лет. Что примечательно, в двенадцатиэтажной версии вервые появился грузовой лифт.
- Дома серии II-57 имеют характерные выпуклые под тупыми углами спаренные балконы (или даже счетверенные), благодаря чему относительно легко узнаваемы. Однако, встречаются версии как с прямыми так и с треугольными балконами.
- В серии были применены новые на то время наружные панели, безрадиаторная система отопления (теплые подоконники), и новые узлы стыков панелей. С точки зрения планировки серия II-57 имеет не так много несущих стен, так что внутри квартиры можно реализовать относительно много вариантов перепланировки.
- Серия благополучно перестала существовать в 1978 году уступив место П-30 и П-3, которые унаследовали от нее грузовые лифты, керамзитобетонные наружные панели, и планировку “распашонками”.










![33+ идеи дома с внутренним двором • 333+ images • [артфасад]](http://dezinformation.ru/wp-content/uploads/c/1/e/c1ed6af9aed8123469a1c6282ed18bd2.jpeg)

















